La casa prefabricada de 139 metros cuadrados, tres habitaciones y tres baños por menos de 64.000 euros
Cada vez más familias contemplan estos hogares como una vía real para independizarse sin renunciar a la privacidad ni al confort
Así es vivir en una casa container: «Yo venía aquí con la idea de que el baño sería sin ducha, para lavarte las manos, pero cabe todo»
Madrid
Esta funcionalidad es sólo para registrados
Iniciar sesiónEn un país donde adquirir una casa se ha convertido casi en una cuestión de resistencia económica, la búsqueda de alternativas ha abierto un camino impensable hace unos años: el de las viviendas prefabricadas. Lo que hace una década se relacionaba con soluciones ... provisionales o estructuras poco duraderas se ha transformado en propuestas arquitectónicas serias, estéticas y preparadas para una vida cotidiana cómoda. Y, lo más importante, con precios que rompen la dinámica asfixiante del mercado tradicional.
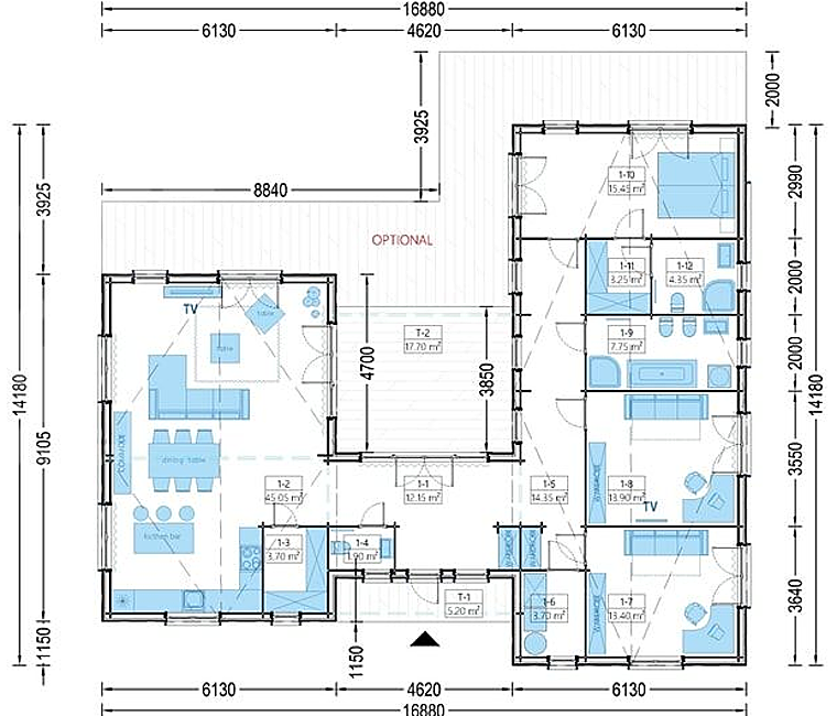
Por estas razones, cada vez más familias contemplan estos hogares como una vía real para independizarse sin renunciar a la privacidad ni al confort. Ya no se trata de cabañas minimalistas ni de formatos reducidos destinados a vacaciones cortas. La apuesta ahora se centra en residencias de gran tamaño, diseño cuidado y materiales resistentes. Entre las opciones más relevantes se encuentra la casa prefabricada de madera SCARLET, una vivienda de 139 metros cuadrados que Pineca comercializa por menos de 64.000 euros y que se ha convertido en una de las alternativas más llamativas dentro del mercado de casas familiares de gama residencial.
Con tres habitaciones, tres cuartos de baño y una distribución pensada para la convivencia, este modelo coloca el foco en la vida diaria, en la posibilidad de compartir espacios comunes amplios y luminosos sin renunciar a zonas íntimas que permitan a cada miembro de la familia desconectar cuando lo necesita.
La SCARLET destaca por una distribución que prioriza tanto la comodidad como la armonía interior. Los espacios comunes se han concebido para favorecer conversaciones largas, comidas compartidas y una vida familiar fluida, mientras que las habitaciones están ubicadas de manera que cada residente pueda disfrutar de su propio refugio de privacidad. El revestimiento exterior vertical y su tejado a dos aguas aportan una estética moderna, sobria y equilibrada, muy alejada de los prejuicios que aún arrastran las casas prefabricadas.
La vivienda cuenta con un porche de 17 metros cuadrados que funciona como extensión natural del salón durante las épocas de buen tiempo. Para quienes buscan potenciar aún más la vida al aire libre, existe la posibilidad de añadir una terraza adicional de 47 metros cuadrados, lo que amplía notablemente la superficie útil exterior y permite integrar el entorno en la experiencia de la vivienda.
Uno de los aspectos que más sorprende a quienes visitan este modelo por primera vez es la luminosidad interior. Los numerosos ventanales distribuidos a lo largo de toda la estructura garantizan que la luz natural penetre durante todo el día, creando una atmósfera cálida y acogedora que cambia con las estaciones.
Opciones personalizables según la necesidad
La casa SCARLET puede personalizarse prácticamente desde la cubierta hasta el suelo. La instalación puede incluir montaje profesional, fontanería, electricidad y cimentación, según las necesidades de cada comprador. También pueden elegirse distintos sistemas de cubierta, desde techados metálicos hasta tejas asfálticas en varios colores. Asimismo, es posible incluir tratamientos protectores interiores y exteriores contra la humedad, así como seleccionar puertas y ventanas de PVC en blanco o gris, con opción de persianas manuales o eléctricas.
El suelo puede configurarse en vinilo en tonos roble o gris, lo que permite adaptar la vivienda a estilos decorativos diferentes, desde ambientes más rústicos hasta entornos contemporáneos. Además, Pineca ofrece la posibilidad de incorporar otros elementos complementarios como un leñero de gran capacidad.
Más allá de sus características técnicas, la SCARLET simboliza algo más profundo. En un momento en el que la vivienda se ha convertido en uno de los grandes debates sociales, este tipo de propuestas abre puertas que antes estaban cerradas.
Esta funcionalidad es sólo para suscriptores
Suscribete
Esta funcionalidad es sólo para registrados
Iniciar sesiónEsta funcionalidad es sólo para suscriptores
Suscribete