Casi 700.000 euros en la Macarena: así son los nuevos pisos a 15 minutos del centro de Sevilla
Estas viviendas unifamiliares están situadas en calle San Juan Bosco y cuentan con con garaje, trastero y piscina incluida
El precio de la vivienda en Sevilla sube un 12%: un piso de 90 metros cuesta de media 216.600 euros
Los abogados respaldan los topes a los pisos turísticos: «Hay jurisprudencia»
Pablo Torres
Sevilla
Hoy en día, el precio de la vivienda es inasumible debido a la poca oferta existente por culpa de la rentabilidad de los apartamentos turísticos. De esta forma, los más jóvenes, si no optan por compartir piso, tienen que huir del centro de ... la ciudad para comenzar sus nuevas vidas en barrios más alejados o en las localidades próximas de la capital hispalense.
Esto no significa que no sigan existiendo diferentes ofertas en el centro de la ciudad, sin embargo, estas no están disponibles para todos los bolsillos. Este es el caso de la última vivienda plurifamiliar situada cerca de la Macarena, en la calle San Juan Bosco, con un precio de 696.000 euros.
La urbanización Adrio Sevilla se encuentra junto a la emblemática fábrica de vidrio de La Trinidad, en el barrio Cruz Roja de Capuchinos, sigue ofertando su última vivienda dentro de la oferta de 2, 3 y 4 dormitorios. Este edificio de 4 alturas cuenta con 40 hogares con plaza de garaje y trastero.
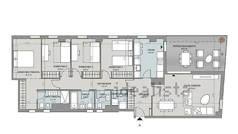
Habitaciones de la vivienda
Se trata de una vivienda de grandes dimensiones, de 103 metros cuadrados útiles, situada en la tercera planta del edificio. El hogar cuenta con unas instalaciones muy modernas, en las que incluye 4 dormitorios, 2 baños y un aseo, cocina, salón y terraza. Además cuenta con zonas comunes en la planta inferior y una piscina en la cubierta.
Al ser una obra nueva, el inmueble está sin amueblar, a excepción de los baños y la cocina que viene equipada con un horno eléctrico, placa de inducción, microondas y una campana decorativa para poder cumplir tus deseos culinarios.
Una vez se accede a ella, lo primero que se encuentra es un descansillo que une el salón, la cocina y el pasillo hacia las habitaciones. De esta forma, nada más entrar, la primera habitación a la que entrar es el salón a mano derecha. De frente se encuentra la cocina, y a la izquierda se accede al pasillo que lleva a las habitaciones y aseos. Para salir a la terraza, se podrá acceder tanto por la cocina como por el salón.
En la otra parte de la casa, se encuentran las habitaciones y los baños, distribuidos de tal manera que las habitaciones están al lado derecho, y los baños y el aseo al lado izquierdo. La primera habitación es algo más grande que las dos que la siguen, mientras que el dormitorio principal se sitúa al final del todo.
Características
Esta vivienda de 5.043 euros por metro cuadrado, cuenta con sistema de aerotermia, tecnología con mayor eficiencia energética y respetuosa con el medio ambiente, refrigeración por conductos y calefacción mediante suelo radiante.
Zona
Además, esta urbanización está ubicada en el barrio de la Macarena, una zona en la que su alrededor cuenta con todos los servicios que puedas necesitar en el día a día. A apenas un par de minutos andando se encuentran supermercados, restaurantes y locales de ocio. A su vez cuenta con variedad de centros educativos tanto públicos como privados y el Centro de Salud Ronda Histórica a menos de 100 metros de distancia.
A unos 15 minutos del centro de la ciudad Sevillana, se convierte en una zona ideal para vivir gracias a su cercanía con el casco histórico, la vida en el propio barrio y las buenas y rápidos conexiones a las principales vías de la ciudad.
Esta funcionalidad es sólo para suscriptores
Suscribete
Esta funcionalidad es sólo para registrados
Iniciar sesiónEsta funcionalidad es sólo para suscriptores
Suscribete