La casa prefabricada de 137 metros cuadrados, dos plantas, cuatro dormitorios y cuatro baños por menos de 109.000 euros
Este modelo reúne amplitud, distribución funcional y un precio difícil de ignorar
Una mujer vive tres años en una casa prefabricada en España y explica su experiencia: «Nos hemos acostumbrado, pero...»
Madrid
Esta funcionalidad es sólo para registrados
Iniciar sesiónDurante mucho tiempo, tener una vivienda en propiedad ha sido uno de los pilares a los que aspiraba cualquier persona en España. Sin embargo, el contexto actual ha ido desplazando esa aspiración hacia el terreno de lo inalcanzable para buena parte de la población. ... Los precios del mercado inmobiliario continúan ascendiendo, los salarios no siguen el mismo ritmo y las condiciones de financiación exigen compromisos que se prolongan durante décadas. En medio de este escenario, comienzan a aparecer alternativas que hace apenas unos años hubieran sido recibidas con escepticismo o incluso sorpresa. Las casas prefabricadas, impulsadas por avances en diseño, eficiencia y sostenibilidad, han pasado de ser una opción marginal a convertirse en una respuesta plausible para quienes buscan independencia residencial sin hipotecarse media vida.
El cambio no es casual. Estas viviendas permiten reducir los tiempos de construcción, evitan sobrecostes derivados de obras prolongadas y ofrecen acabados cada vez más cuidados. Además, la posibilidad de personalizarlas según las necesidades del futuro propietario ha contribuido a reforzar su atractivo.
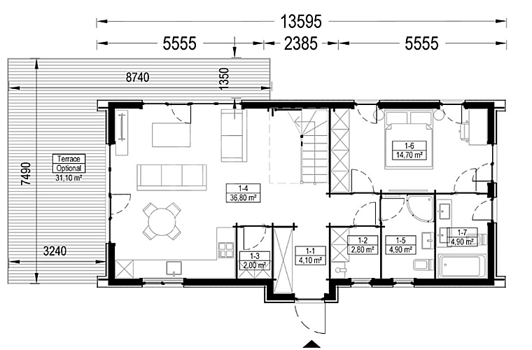
Entre las propuestas que han llamado la atención en este nuevo escenario se encuentra un modelo de la firma Pineca que reúne amplitud, distribución funcional y un precio difícil de ignorar. Se trata de una vivienda de aproximadamente 137 metros cuadrados, distribuida en dos plantas y con cuatro dormitorios y cuatro baños, cuyo coste base se sitúa por debajo de los 109.000 euros.
Un concepto de vivienda pensado para la vida diaria
El atractivo de este modelo no reside únicamente en su precio, sino en la manera en que organiza los espacios. El diseño contempla cuatro habitaciones separadas que permiten que cada miembro de la familia cuente con un área propia, evitando la sensación de saturación que a menudo se produce en hogares compartidos. A ello se suma la presencia de cuatro baños independientes, lo que elimina esperas y facilita la convivencia fluida en momentos de mayor actividad, como las mañanas o las rutinas de noche.
El salón principal, de 37 metros cuadrados, está concebido para albergar en un mismo entorno la zona de estar, el comedor y una cocina amplia, siguiendo una tendencia que prioriza la interacción y la comodidad visual frente a compartimentos cerrados.
Las ventanas de PVC con triple acristalamiento, disponibles en blanco o gris antracita, contribuyen a mejorar el aislamiento térmico y acústico, mientras que los mecanismos de acero inoxidable garantizan durabilidad en el uso diario. La sensación de apertura al exterior puede extenderse aún más mediante la instalación opcional de una terraza de madera que amplía la superficie habitable y habilita un espacio adicional de descanso o sociabilidad.
Uno de los aspectos que más interés está generando entre los compradores de viviendas prefabricadas es la mejora en el aislamiento. En este caso, la vivienda incorpora lana de roca de 200 mm en el techo, lo que supone una capacidad aislante superior a la opción estándar. Las paredes y suelos también están acondicionados con capas de aislamiento de 150 mm y 100 mm respectivamente, lo que permite mantener temperaturas estables tanto en invierno como en verano. Esto convierte la casa en una opción viable no solo como residencia vacacional o de fin de semana, sino como hogar permanente durante todo el año.
La casa prefabricada que vende Amazon por menos de 7.000 euros: con estructura de metal reforzado y aislamiento térmico e insonorizado
Jorge HerreroLa vivienda está fabricada con materiales de alta calidad y pensada para soportar las inclemencias del tiempo
La empresa ofrece además un conjunto de servicios adicionales que permiten ajustar el modelo a distintos gustos y necesidades. Entre ellos se encuentra la opción de montaje mediante equipo profesional en territorio peninsular, con un coste previo que comienza a partir de 28.562 euros. El comprador puede elegir también distintos tipos de cubiertas, desde láminas bituminosas autoadhesivas hasta techados metálicos en tonos gris antracita, rojo o verde. Además, existen tratamientos contra la humedad para aplicación interior, barnices de suelo y pared, así como suelos de vinilo disponibles en acabado roble o gris.
Por último, la firma incluye una garantía mínima de dos años en todas sus construcciones, respaldada por personal especializado en diseño y fabricación de viviendas en madera, lo que añade una capa de seguridad y confianza.
Esta funcionalidad es sólo para suscriptores
Suscribete
Esta funcionalidad es sólo para registrados
Iniciar sesiónEsta funcionalidad es sólo para suscriptores
Suscribete